1. SUPERSYSTEM II Betriebsgeräte und Zubehör zu Downlights

Sensoren Wetter

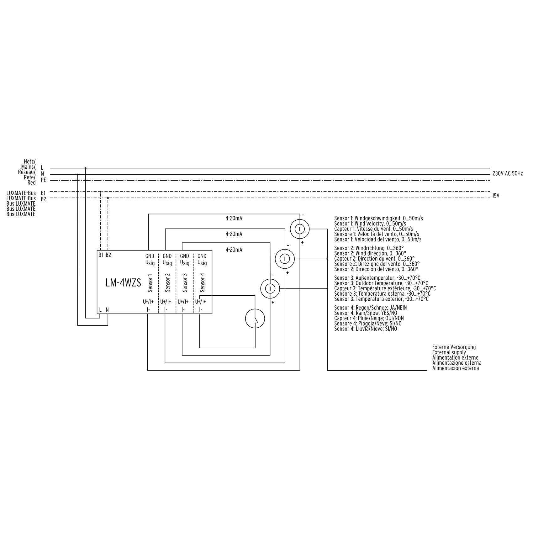
LM-4WZS
Artikelnummer: 22154128
EAN-Nummer: 9005798138028
Sensor-Eingang (Wettersensoren) 4x
Farbe
Weiß
Andere Varianten ansehen
KonfigurierenZubehör

Technische Daten

Elektrische Eigenschaften
Nennspannung
230 - 240 V
Frequenz
50/60 Hz
Schutzklasse
SC2
Notlicht inkludiert
Nein
Lichtverteilung
Lichtverteilung
STD - Standard
Physische Merkmale
Abmessungen
105x90x59 mm
Länge
105 mm
Breite
90 mm
Höhe
59 mm
Gewicht
0.32 kg
Farbe
Weiß
Schutzart
IP20
Reflector Color
halogenfrei
Normen und Standards
Zertifikate
CE
SC2 - Schutzklasse 2
Halogenfrei
IP20
Zeichnungen

Downloads

Zubehör

Sensoren Wetter

22154128 LM-4WZS Voreingestellte Sensoreingänge für die gleichzeitige Auswertung von vier konventionellen meteorologischen Sensoren: Windgeschwindigkeit, Windrichtung, Außentemperatur und Niederschlag. Netz- und Busanschluss, Eingangsseitig: vier vordefinierte Sensoreingänge. Messwerte werden je nach vorgegebenem Typ in zugehörige physikalische Größen wie °C oder km/h umgewandelt und über den Bus dem Licht- und Raummanagementsystem zur Verfügung gestellt. Anschlüsse über Schraubklemmen; Schaltschrankgehäuse aus flammwidrigen Polycarbonat, halogenfrei, geeignet für Montage auf Hutschiene 35 mm Gemäss EN 50022, zulässige Umgebungstemperatur von 0 °C... +50 °C, Schutzart IP20, Abmessungen: 105 x 90 x 59 mm, 6 TE á 17,5 mm.
Text kopieren